- Woonoppervlakte
- Circa 87 m²
- Perceeloppervlakte
- Circa 108 m²
- Bouwjaar
- Gebouwd in 1935
- Aantal kamers
- 5 kamers (4 slaapkamers)
Met een gebruiksoppervlak van 108 m² (volle eigendom) biedt deze woning een lichte woonkamer met houtkachel, moderne woonkeuken, vier ruime slaapkamers, een veelzijdige zolder en een royale, zonnige achtertuin met overkapping. Goed onderhouden en met volop mogelijkheden voor diverse woonwensen – een kans om hier uw droomhuis te realiseren!
De Berkenweg is een rustige en kindvriendelijke straat met vrij uitzicht aan de voorzijde. In de directe omgeving vindt u een speeltuin, basisscholen, station Boskoop en het gezellige centrum. Ook uitvalswegen zijn snel bereikbaar.
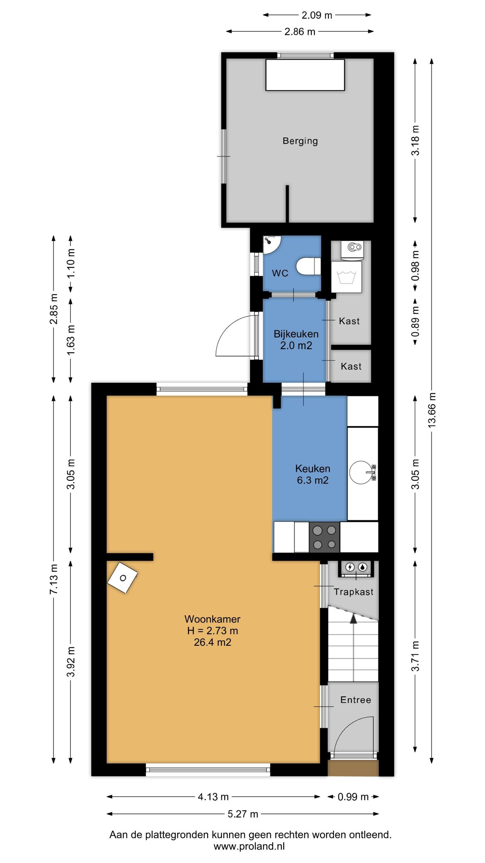
De begane grond:
De sfeervolle woonkamer met houtkachel en vrij uitzicht aan de voorzijde vormt het hart van de woning. Aan de tuinzijde ligt de moderne open keuken, compleet uitgerust met o.a. een vaatwasser, koel-vriescombinatie, magnetron, oven, keramische kookplaat, afzuigkap en een praktische apothekerskast.
Via de bijkeuken - met extra bergruimte, was- en droogopstelling en cv-installatie – bereikt u het toilet en de achtertuin. Aansluitend in de tuin bevindt zich een royale stenen berging met verwarming en warmwatervoorziening.
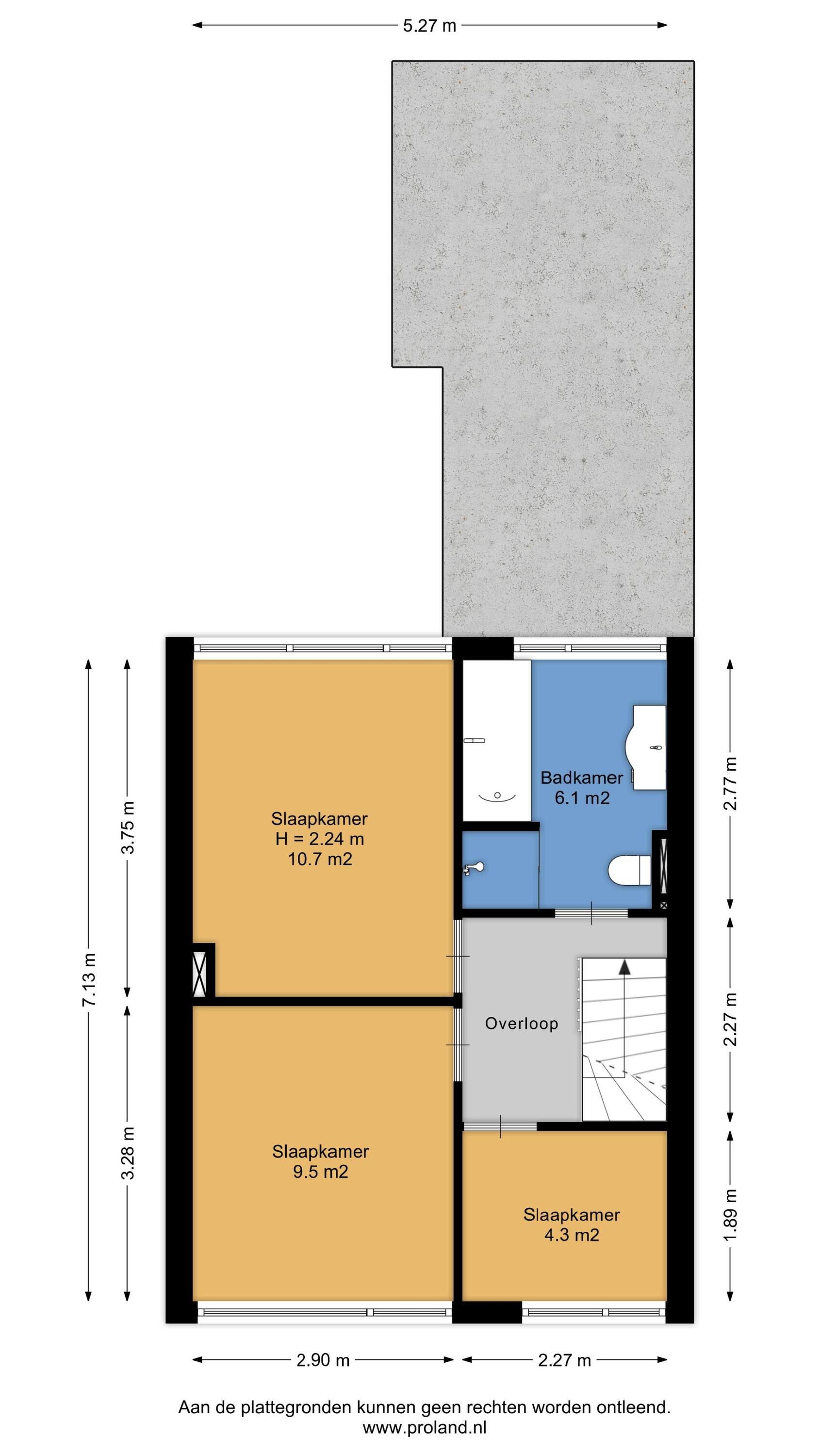
Eerste verdieping:
De overloop geeft toegang tot drie slaapkamers. Dankzij dakkapellen aan zowel de voor- als achterzijde, is de ruimte op deze verdieping optimaal benut, met veel licht en rechte wanden. Twee slaapkamers beschikken over ruime vaste kasten. Waarvan 1 slaapkamer is voorzien van Airco. De badkamer is volledig betegeld en voorzien van een ligbad, aparte douche, tweede toilet en een wastafelmeubel. Alle ruimten ademen rust uit.
Tweede verdieping:
De vaste trap brengt u naar de tweede verdieping, waar een veelzijdige zolderruimte op u wacht. De overloop met knieschot biedt toegang tot een extra slaapkamer die ook perfect kan dienen als werk- of hobbyruimte, voorzien van een vaste kast, en 2 ruime Veluxramen. Deze verdieping biedt volop mogelijkheden voor creatieve invulling.
Buitenruimte:
De achtertuin (westen) is een heerlijke plek om te genieten van het buitenleven. Volledig vernieuwd mei 2019. Fraai aangelegde bestrating met waterafvoer en groene elementen maakt deze tuin zowel onderhoudsvriendelijk als sfeervol. Achterin de tuin bevindt zich een fijne dubbelwandige overkapping met veel privacy, ideaal om te ontspannen in de zon of schaduw.
Bijzonderheden:
- Schilderwerk 2023;
- De woning is geheel voorzien van dubbele beglazing;
- Airconditioning slaapkamer;
- Gesitueerd in een rustige, kindvriendelijke woonomgeving;
- Dichtbij het station, centrum en uitvalswegen;
- Sfeervolle woonkamer met fraai vrij uitzicht;
- Energielabel F.
- Gehele woning voorzien van Eikenhouten parketvloer;
- Nette, ruime keuken;
- Heerlijke diepe zonnige achtertuin;
- 4 slaapkamers en veel bergruimte;
- CV ketel eigendom december 2018
- Extra uitgebreide groepenkast december 2018
- Ruime parkeergelegenheid aan de achterzijde.
Kortom: een sfeervolle, complete gezinswoning op een aantrekkelijke locatie in Boskoop. Hier kunt u zo intrekken en naar eigen smaak verder vormgeven.
Overdracht
- Koopsom
- € 395.000 k.k.
- Status
- Verkocht
- Aanvaarding
- In overleg
Bouw
- Object type
- Eengezinswoning, tussenwoning
- Soort bouw
- Bestaande bouw
- Bouwjaar
- 1935
- Soort dak
- Zadeldak
Oppervlakte en inhoud
- Woonoppervlakte
- 87 m²
- Perceeloppervlakte
- 108 m²
- Inhoud
- 304 m³
- Externe bergruimte
- 9 m²
Indeling
- Aantal kamers
- 5 kamers (4 slaapkamers)
- Aantal badkamers
- 1 badkamer
- Badkamervoorzieningen
- Ligbad, toilet, douche, wastafel
- Aantal woonlagen
- 3 woonlagen
Energie
- Energielabel
- F
- Energielabel registratie
- 03-09-2018
Buitenruimte
- Ligging
- In woonwijk, vrij uitzicht
- Tuin
- Achtertuin
- Afmetingen achtertuin
- 38 m² (7.5 meter diep en 5 meter breed)
- ligging tuin
- Gelegen op het westen en
Garage
- Soort garage
- Geen garage
Energieverbruik in Boskoop
Energielabel deze woning
Energielabel F
Publicatie energielabel: 03-09-2018
Stroomverbruik per jaar
(Gemiddelde tussenwoning in Boskoop)
Gasverbruik per jaar
(Gemiddelde tussenwoning in Boskoop)
* Cijfers zijn afkomstig van het CBS en bedoeld als indicatie en kunnen verschillen voor deze woning
Indicatie hypotheeklasten
Eigen inleg:
Spaargeld / overwaarde
Rente:
Laagste 10-jaars rente
Laagste 10-jaars rente
2,75% - Centraal Beheer Groen... - NHG
3,05% - Centraal Beheer Groen... - 80%
Laagste 20-jaars rente
3,52% - Syntrus Achmea Groen B... - NHG
3,79% - Syntrus Achmea Groen B... - 80%
Laagste 30-jaars rente
3,64% - Syntrus Achmea Groen B... - NHG
3,88% - Syntrus Achmea Groen B... - 80%
Hypotheek:
Bruto maandlasten: € 0 p/m
Netto maandlasten: € 0 p/m
Hoe berekenen we dit?
Het rentepercentage is gebaseerd op de laagste 10-jaars vaste rente voor één hypotheekdeel. De vermelde rente (2.75% met NHG) is gecontroleerd op 10-10-2025. Deze berekening is gebaseerd op een annuïteitenhypotheek die volledig wordt afgelost, waarbij de maandlasten gedurende de gehele looptijd gelijk blijven. De werkelijke rente en netto maandlasten kunnen variëren, afhankelijk van uw persoonlijke situatie en de hypotheekverstrekker. Raadpleeg een financieel adviseur voor een nauwkeurige berekening en advies. Aan deze berekening kunnen geen rechten worden ontleend; het dient enkel als indicatie.
Documentatie
Kadastrale kaart
Leefomgeving
Plattegronden PDF
BAG uittreksel
Brochure
Eigendomsbewijs
Gemeentebelastingen-berkenweg-27
Vragenlijst
Bekijk onze website
Bezichtiging
Bod uitbrengen
Waardebepaling
Zoekopdracht
Alles downloaden
Zonnegrenzen bekijken
Op de kaart
Inwoners in Boskoop
Cijfers voor postcodegebied 2771
- Totaal aantal inwoners
- 16130 inwoners
- Mannen
- 50%
- Vrouwen
- 50%
Inwoners in Boskoop
Cijfers voor postcodegebied 2771
- tot 15 jaar
- 16%
- 15 tot 25 jaar
- 13%
- 25 tot 35 jaar
- 24%
- 45 tot 65 jaar
- 28%
- 65 en ouder
- 20%
Huishoudens in Boskoop
Cijfers voor postcodegebied 2771
- Eenpersoons zonder kinderen
- 33%
- Meerpersoons zonder kinderen
- 32%
- Huishoudens zonder kinderen
- 65%
Huishoudens in Boskoop
Cijfers voor postcodegebied 2771
- Huishoudens met één kind
- 6%
- Huishoudens met meerdere kinderen
- 29%
- Huishoudens met kinderen
- 35%
Woningen in Boskoop
Cijfers voor postcodegebied 2771
- Woningen voor 1945
- 19%
- Woningen tussen 1945 en 1965
- 13%
- Woningen tussen 1965 en 1975
- 20%
- Woningen tussen 1975 en 1985
- 19%
- Woningen tussen 1985 en 1995
- 10%
Woningen in Boskoop
Cijfers voor postcodegebied 2771
- Woningen tussen 1995 en 2005
- 9%
- Woningen tussen 2005 en 2015
- 6%
- Woningen na 2015
- 5%
- Huurwoningen
- 40%
- Koopwoningen
- 60%
Overige in Boskoop
Cijfers voor postcodegebied 2771
- Gemiddelde WOZ waarde
- € 263.000,-
- Personen onder de 65 met uitkering
- 5%
Overige in Boskoop
Cijfers voor postcodegebied 2771
- Adressen per km²
- 889
- Stedelijkheid (schaal 1 op 5)
- 40%
Korte feiten over Boskoop
Boskoop (uitspraakⓘ) is een plaats in Zuid-Holland, die gelegen is aan (gekanaliseerde) rivier de Gouwe tussen Alphen aan den Rijn en Waddinxveen. Tot 1 januari 2014 was het een zelfstandige gemeente, per die datum is ze opgegaan in de fusiegemeente Alphen aan den Rijn. Op 1 januari 2023 had Boskoop een inwoneraantal van 16.670.
Indien u vragen heeft of u wilt een bezichtiging inplannen, dan kunt u gebruik maken van het formulier hiernaast. Er zal daarna op korte termijn contact met u worden opgenomen.
Euromarkt 3
2408 BA, Alphen aan den Rijn
0172 - 234 406 info@houtmandevogel.nl www.houtmandevogel.nlContact opnemen
Over Houtman & de Vogel
Bent u van plan om uw woning te verkopen? Zoek niet verder! Bij Houtman & de Vogel profiteert u van ervaren makelaars met uitgebreide kennis van de lokale woningmarkt. Ons doel is om de best mogelijke verkoopprijs en voorwaarden voor onze klanten te realiseren. Benieuwd hoe we dat doen? Maak een afspraak en ontdek wat wij voor u kunnen betekenen.
Ons kantoor is gevestigd op de Euromarkt 3 in Alphen aan den Rijn. Het heeft een professionele uitstraling en is voorzien van opvallende tv-schermen in de etalage waar uw woning wordt gepresenteerd. U kunt ons eenvoudig bereiken en er is gratis parkeergelegenheid voor de deur!
Houtman & de Vogel staat bekend om zijn actieve en resultaatgerichte aanpak, gekenmerkt door een no-nonsense mentaliteit. Wij zijn 6 dagen per week en 16 uur per dag bereikbaar. U kunt bij ons terecht voor bezichtigingen of een (gratis) waardebepaling, niet alleen tijdens kantooruren, maar ook in de avonduren en op zaterdag.
Nieuwste reviews
-
Zijde 64
Het contact en de begeleiding verliep uitermate plezierig en het advies wat wordt gegeven is uitstekend. Deze makelaar is een begrip in de r...
-
Zonnedauw 90
Heeft mijn verwachtingen overtroffen. Heldere uitleg. To the point.Ondersteuning vanuit kantoor ook prima.
-
Assumburg 106
Een geweldige makelaar! Hij heeft het huis van onze overleden moeder met enorm veel respect en zorg verkocht. Alles is perfect geregeld, tot...